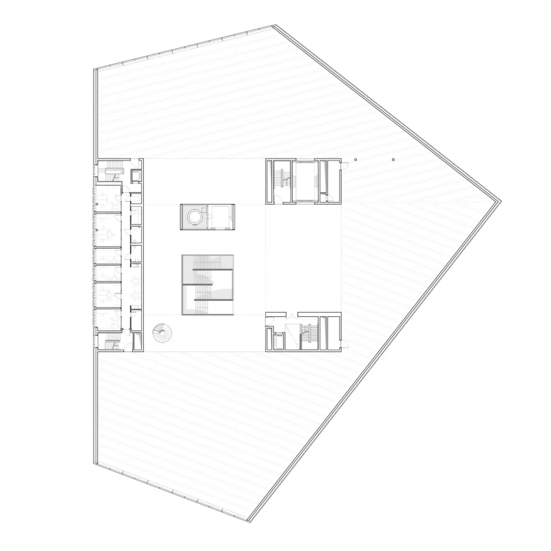
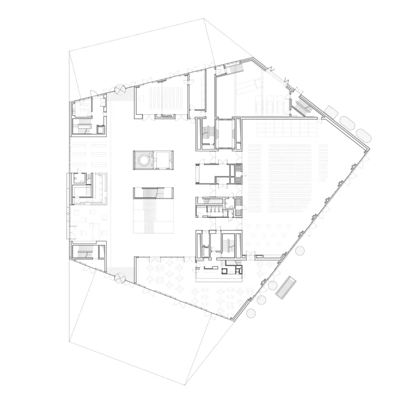
Das Futurium ist ein Ausstellungs- und Veranstaltungsgebäude im Herzen von Berlin – eingebettet zwischen dem Bundesministerium für Bildung und Forschung, Spreebogen und Humboldthafen, Hauptbahnhof und Gelände der Charité. Innerhalb dieses Ensembles entwickelt das Futurium eine eigenständige skulpturale Form. Das Futurium ist als Plusenergiegebäude konzipiert und erreicht in der Nachhaltigkeitsbewertung den Status BNB-Gold.
Die schmetterlingsförmige Auffaltung des Baukörpers zu städtebaulichen Hochpunkten verleiht dem Futurium die visuelle Prägnanz zwischen Spree und Hochbahn. An den Hauptzuwegungen Alexanderufer und Kapelle-Ufer werden durch Zurücksetzen der Bauflucht zwei Plätze geschaffen.
Ein Punktmuster überzieht die komplette Platzfläche und gibt dem Platz einen eigenen Charakter.
Die Fassade besteht aus über 8000 Kassettenelementen. Die jeweils 70x70 cm großen Elemente bestehen aus unterschiedlich gefalteten Metall-Reflektoren und keramisch bedrucktem Gussglas. Diese erzeugen ein changierendes, sich mit dem Lichteinfall beständig änderndes Wolkenbild.
Das neue Gebäude dient als Ort für Präsentationen und zur Förderung des Dialogs zwischen Forschung und Entwicklung. Mit Ausstellungen und Veranstaltungen werden zukunftsorientierte Entwicklungen von nationaler und internationaler Bedeutung sichtbar gemacht.






