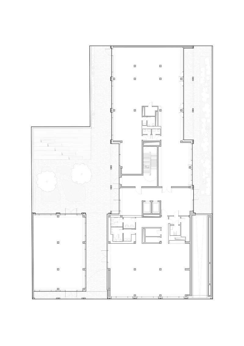
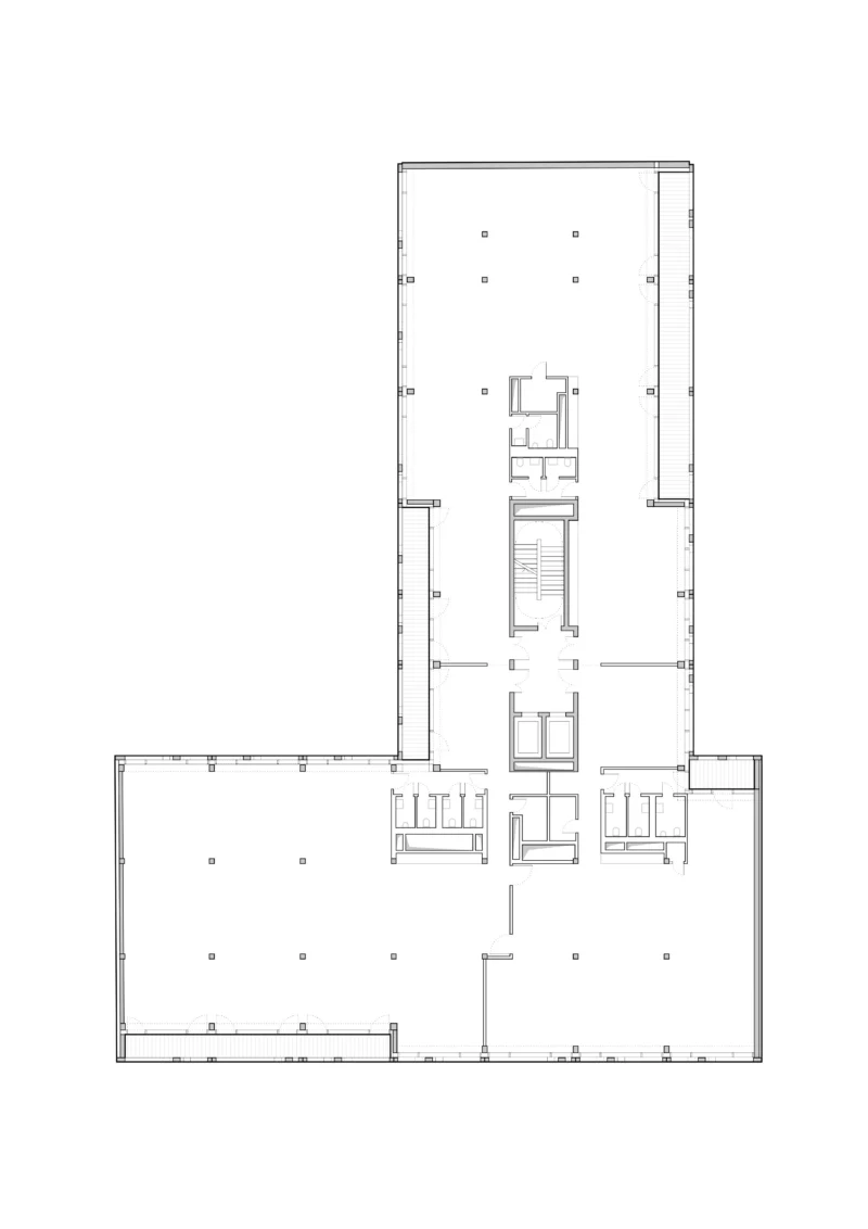
Das Bürogebäude Ritterstraße 16 positioniert sich als eine robuste Struktur im geschäftigen und rauen Stadtteil Berlin Kreuzberg. Eine sichtbare, sich über alle Geschosse verwebende Fassadenstruktur aus Betonfertigteilen verbindet die Vielfalt der Nutzer in seinem Inneren zu einem gemeinschaftlichen Bild. Der Baukörper wird straßenbegleitend als Blockrand ausgebildet und schafft im Rückbereich einen intimen Hof mit Freitreppe. Loggien und Terrassen strukturieren die Fassaden und schaffen Aufenthaltsflächen im Freien für alle Nutzer des Hauses.
Dem Leitbild des typischen Kreuzberger Gewerbehofes folgend, gelangt man über einen Durchgang zum Hofbereich mit Haupteingang in das 6-geschossige Gebäude. Eine Stahlbetonskelettkonstruktion schafft offene Grundrisse. Die bodentiefen Fenster der feingliedrigen Aluminiumfassade sorgen für eine gute Tageslichtversorgung. Eine Betonkerntemperierung in den sichtbaren Betondecken ermöglicht eine angenehmes Raumklima.
Das Gebäude ist DGNB Gold zertifiziert und barrierefrei geplant. Als eine innerstädtische Nachverdichtung nutzt es die anstehenden Infrastrukturen und Verkehrsmittelanbindungen als Teil des städtischen Netzwerkes. Fahrradstellplätze sind im Innenhof und im Untergeschoss verortet. Die Energieversorgung erfolgt über einen Fernwärmeanschluss und eine Photovoltaikanlage auf dem begrünten Dach. Zusätzlich zum außenliegenden Sonnenschutz bilden die tiefen Loggien eine natürliche Eigen-Verschattung.






